Skip to Content

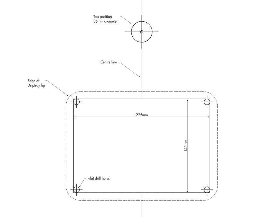
Cutting template for U1 Small Flush Fitted Drip tray

Each U1 Small Flush Fitted Drip tray is dispatched with a cutting template for ease of installation. If you wish to cut your work surface before delivery of your tap system you can order a cutting template in advance.

Regular price

€0,00

Sale price

€0,00

Regular price

Was

Product code:

838038